جريدة الجريدة الكويتية - tags

الأخبار المتعلقة بـ #يوسف العبدالله (2593)
«السكنية»: تحديث البيانات كل عامين أو إيقاف بدل الإيجار

أعلن مدير إدارة بدل الإيجار في المؤسسة العامة للرعاية السكنية يوسف الكندري أن المؤسسة ستعتمد نظاماً جديداً لتحديث بيانات المواطنين بشكل...

«السكنية» تلزم المواطنين تحديث بياناتهم كل عامين أو إيقاف بدل الإيجار عنهم

كشف مدير إدارة بدل الإيجار في المؤسسة العامة للرعاية السكنية، يوسف الكندري، أن المؤسسة ستبدأ العمل بنظام جديد لتحديث بيانات المواطنين...

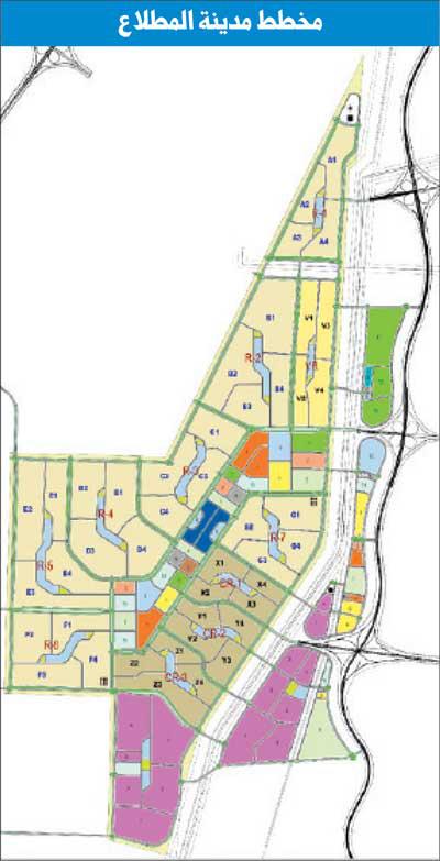
«السكنية» ترفع تخصيص المطلاع إلى نهاية عام 2004

للمرة الرابعة بعد فتح باب التخصيص لمشروع مدينة المطلاع أواخر أبريل الماضي، رفعت المؤسسة العامة للرعاية السكنية تاريخ تخصيص المشروع حتى...

طوارق الجديدة… حلم تحقق!

في حلة جديدة، خرجت الألمانية "طوارق" بتصميم حديث بعد كشف النقاب عنها في العرض العالمي للسيارات الرياضية متعددة الأغراض في بكين في وقت...

اهتمام حكومي بمدينة المطلاع لحلحلة الأزمة الإسكانية

تشهد المؤسسة العامة للرعاية السكنية خلال الآونة الأخيرة تغييرات إيجابية ملحوظة من خلال السعي إلى تذليل الأزمة الإسكانية، بعدما تجاوزت...

«كاليفورنيا تي»… تتحدى الثواني!

للمرة الأولى! جاءت الإيطالية فيراري "كاليفورنيا تي" بمحرك توربو بـ 8 سلندرات، حيث ابتكر مهندسو مارانيلو وحدة طاقة جديدة كليا توفر مستويات...

«السكنية»: ملتزمون بتوفير السكن لـ «من باع بيته» خلال 3 سنوات

كشف مدير إدارة المساكن المؤجرة في المؤسسة العامة للرعاية السكنية مبارك الشويمي أن المؤسسة ملزمة بتوفير السكن لفئة "من باع بيته" خلال 3...

«كامري» الجديدة... ثقة تتوارثها الأجيال

لعل الحديث عن مرور 33 عاماً منذ إطلاقها لأول مرة، والثقة التي تتوارثها الأجيال، أفضل ما يمكن وصف الأسطورة اليابانية كامري 2016 به، بعد...

ربط آلي بين «العدل» و«السكنية» لتسهيل الحصول على البيانات العقارية

بينما أعلنت المؤسسة العامة للرعاية السكنية أمس رفع تخصيص المطلاع إلى 31/12/2003 وما قبله، دشن وزير العدل وزير الأوقاف يعقوب الصانع، ووزير...

«العدل» و«السكنية» تدشنان «الربط الآلي» لتيسير الخدمات

تعاون حكومي جديد يسهل على المواطنين عملية تقديم الطلب الإسكاني الجديد من خلال الربط الآلي بين «السكنية» و«العدل»، بعيداً عن عناء...

«الإنماء الاجتماعي»: توقيع 3 بروتوكولات تعاونية اختصاراً للوقت

أعلن مكتب الإنماء الاجتماعي، التابع لديوان رئيس مجلس الوزراء، أمس، التقرير السنوي لأهم إنجازات المكتب للفترة بين 20/5/2014 و20/5/2015. كشف...

تجمع محدود أمام «السكنية»

تجمع نحو 12 مواطناً من أهالي قسائم مشروع الوفرة القائم صباح أمس الأربعاء أمام المبنى الرئيسي للمؤسسة العامة للرعاية السكنية في منطقة جنوب...

back to top